Westlake Steps Lot 2

 

Westlake Steps Lot 4

 

Hoa Mai Gardens @ Yesler Terrace

 

SPU - 5th Avenue Streetscape

 

Mercy Othello Plaza

 

Arion Apartments @ UW

 

Plymouth on Cherry

 

1401 E. Madison

 

Ravello Apartments

 

Estelle Apartments

 

Encore Apartments

 

The Grange @ Linden

 

Quail Park @ Tukwila

 

2031 Westlake Ave

 

9th Ave Space

 

Merrill Gardens @ West Covina

 

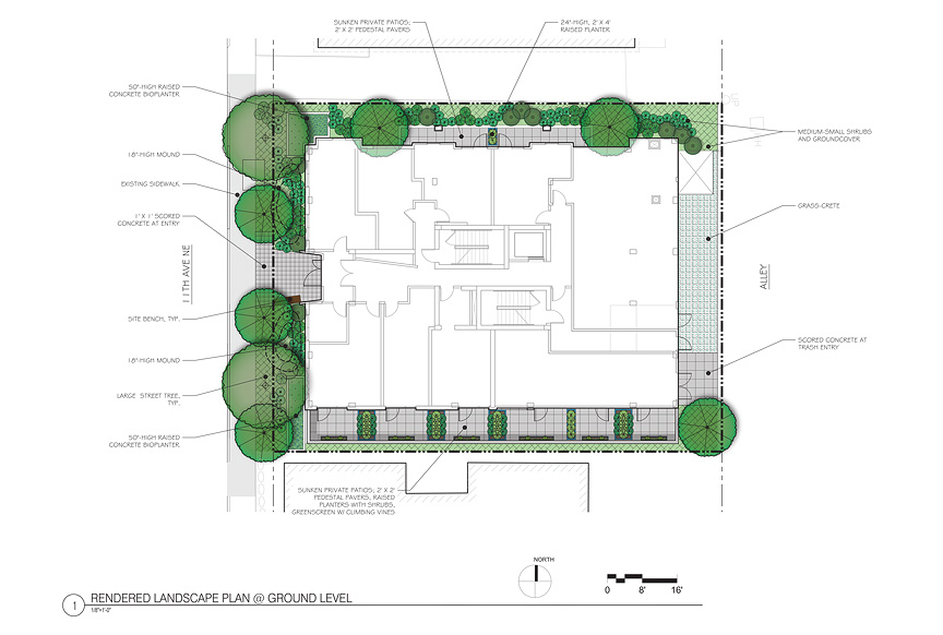
Arion Apartments @ UW

Client: Xiang (Danny) Xiao


The Arion Apartments project is a 7-story multi-family building in the University District, with around 100 units, primarily catering to students.


Fazio Associates designed the streetscape, private patios and roofdeck elements. The shallow street frontage allows for the replacement of two Green Ashes, and new flowering trees and shrubs to enhance the pedestrian experience. Two bioplanters at the front corners of the building treat stormwater from the roof. The private sunken patios have raised planters and greenscreens with climbing vines to provide privacy and delineate space. The roofdeck includes a greenroof tray system, outdoor kitchen, raised planters with shrubs and flowering trees, and benches. The roofdeck emphasizes the views out west to the Olympic Mountains and to downtown Seattle.