Westlake Steps Lot 2

 

Westlake Steps Lot 4

 

Hoa Mai Gardens @ Yesler Terrace

 

SPU - 5th Avenue Streetscape

 

Mercy Othello Plaza

 

Arion Apartments @ UW

 

Plymouth on Cherry

 

1401 E. Madison

 

Ravello Apartments

 

Estelle Apartments

 

Encore Apartments

 

The Grange @ Linden

 

Quail Park @ Tukwila

 

2031 Westlake Ave

 

9th Ave Space

 

Merrill Gardens @ West Covina

 

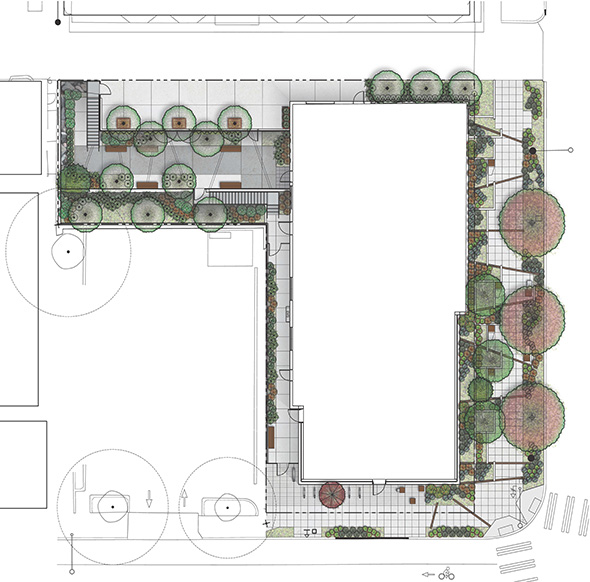
Plymouth on Cherry

Client: Plymouth Housing Group


Plymouth Housing Group’s development will provide permanent affordable housing to 77 chronically homeless individuals with 24-hour staff. The site is adjacent to the downtown core and close to the major medical centers located on First Hill. The project will follow the Housing First program to house chronically homeless people, providing a range of supportive services for substance abuse and/or mental illness. The building features large first floor windows to enhance the pedestrian environment and provide “eyes on the street” and is Built Green to Evergreen Sustainable Development Standards.


Fazio Associates designed the street improvements along Cherry Street and 7th Avenue, as well as an elevated courtyard and other site landscape. The cascading planters and benches will create natural pause points along Cherry to help mitigate the steep grade. Lush and varied plantings also enhance the pedestrian experience. Accent walls and bands in the sidewalk evoke the history of First Hill, echoing a pattern of logs coming down the hillside. Along 7th Avenue, bike racks, a lean rail, and small benches will provide urban streetscape elements for the residents.


The Courtyard will act as a small oasis, vertically separated from the alley street level and the parking lot below. Benches and at grade planting create a serene resting place, while the open central paved area will provide space for larger gatherings or BBQs.